Structural building consulting engineers

Mon to Fri - 07:30 to 18:30 |Saturday - 10:00 to 16:00

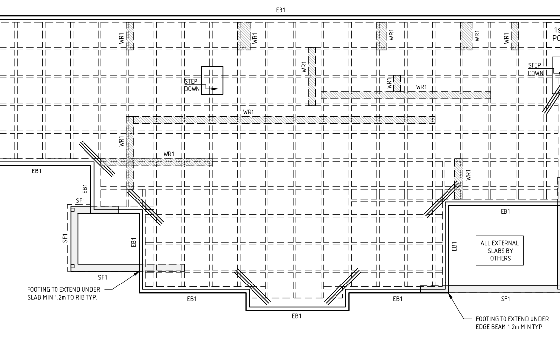
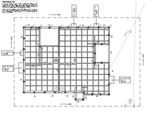
Residential Building at Birtinya and SEQ

In Pool Residential Structure

Do you need professionals to project and build your dream home?

We offer the best engineers to make your dreams come true.